Powrót
Rzut lokalu
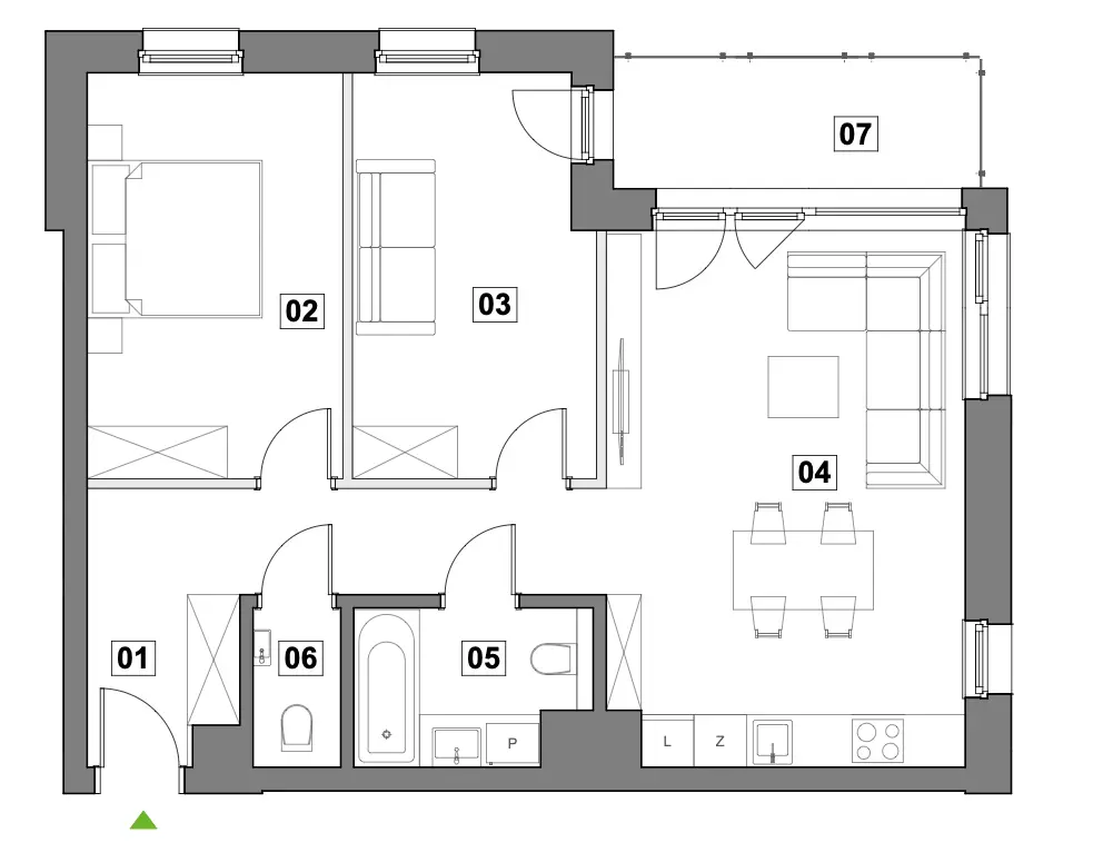
  1. Przedpokój 10.38 m²
  2. Sypialnia 12.41 m²
  3. Sypialnia 13.53 m²
  4. Salon z aneksem 24.87 m²
  5. Łazienka 4.59 m²
  6. WC 1.82 m²
  7. Loggia 6.53 m²

Mieszkanie E3.1.367.60 m²

Dostępne

Wybierz lokal usługowy

Wybierz mieszkanie

Wybierz mieszkanie

Wybierz mieszkanie

Wybierz mieszkanie

Wybierz mieszkanie

Wybierz mieszkanie

Położenie lokalu w budynku: 1 piętro

Budynek: E

+48 539 96 96 96
office@master-house.com.pl